Property Type
Condo, Apartment
Parking
Garage: Yes, 1 parking
MLS #
W12500604
Size
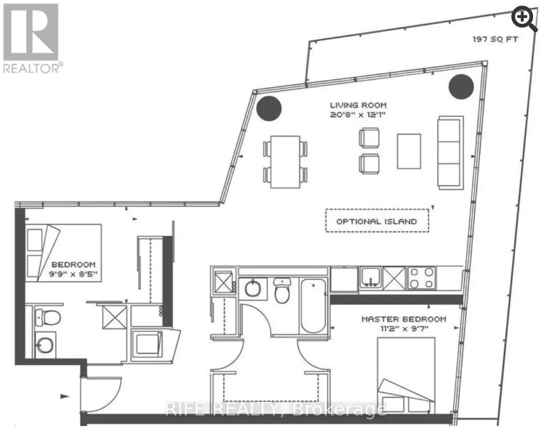
900 - 999 sqft
Basement
None
Listed on
-
Lot size
-
Tax
-
Days on Market
-
Year Built
-
Maintenance Fee
$951.51/mo
