21
$690,000 Sale
Listed 4 hours ago
707 Mandalay Avenue
· 3
· 2.5
· 6
· 2425
Key Facts
Key facts for 707 Mandalay Avenue
Property Type
House, House
Parking
Garage: Yes, 6 parking
MLS #
A2267812
Size
2425 sqft
Basement
Unfinished, Full (Unfinished)
Listed on
-
Lot size
-
Tax
-
Days on Market
-
Year Built
2026
Maintenance Fee
-
Description
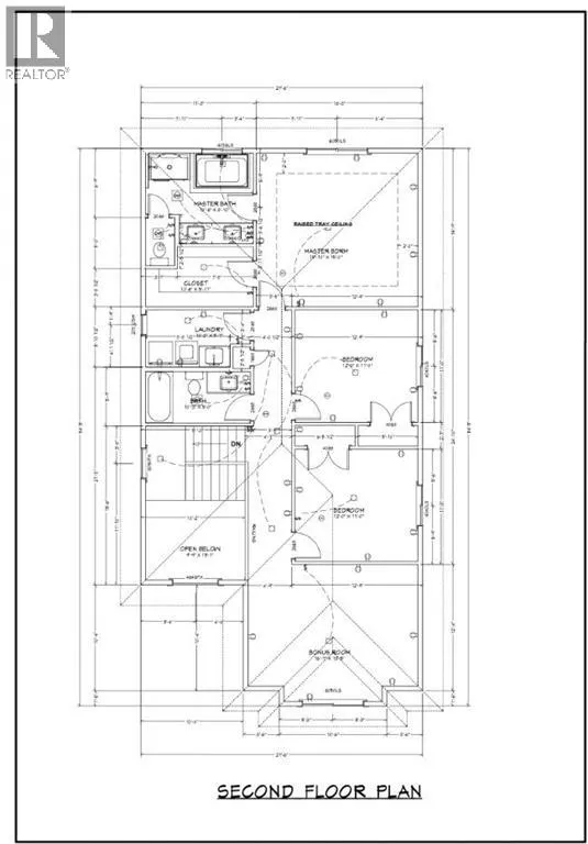
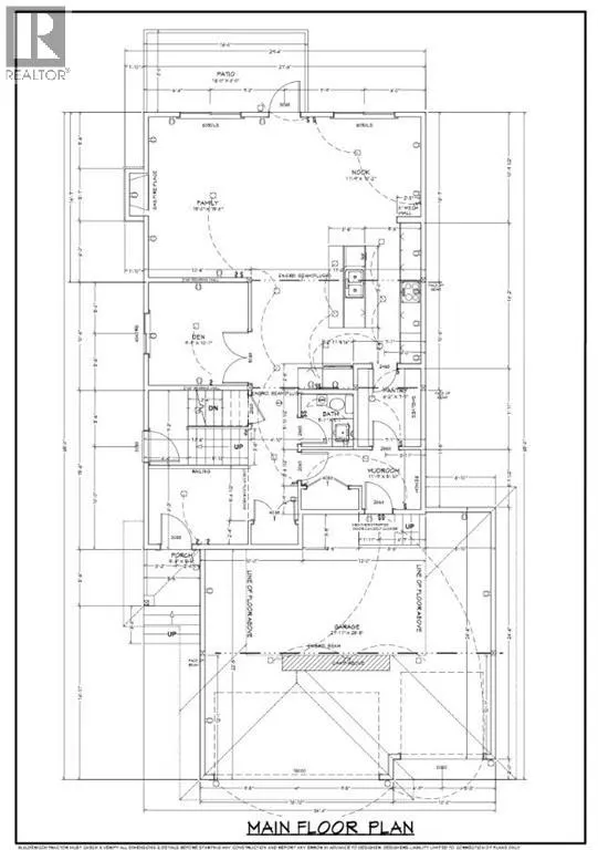
Discover this thoughtfully designed home, currently under construction and built to impress with quality craftsmanship and modern finishes. The main floor welcomes you with a bright open-concept layout featuring a spacious family room with a fireplace, a well-appointed kitchen with a large island an...d walk-in pantry, and a generous dining/nook area that leads out to your future patio. A dedicated main-floor den offers the perfect space for a home office or quiet study.Upstairs, you’ll find three spacious bedrooms including a stunning primary suite complete with a spa-inspired ensuite and a large walk-in closet. The upper level also features a sizeable bonus room, full bathroom, and a convenient laundry room designed for everyday ease.The basement remains undeveloped and backs onto a green space, giving you the opportunity to customize the space to suit your family’s future needs. A triple-car garage provides ample parking and storage. Exterior finishes include Hardie siding and elegant stone accents for timeless curb appeal.Located in a growing family-friendly community with access to parks, green spaces, and future amenities, this home blends modern comfort with everyday practicality. Secure your chance to own a brand-new home in an exciting new neighbourhood.Floor plan images are for this property. Photos of finished interiors/exteriors are from a similar home by the builder to showcase quality and style. These images are for reference only and final finishes, layout, and features may vary from the completed home. (id:10452)
Similar Properties (No results)
Room Types
2pc Bathroom
-
Dimensions 5.08 Ft x 5.08 Ft
25.81 sqft
5pc Bathroom
-
Dimensions 8.83 Ft x 10.50 Ft
92.72 sqft
Bedroom
-
Dimensions 11.00 Ft x 12.00 Ft
132 sqft
Listing courtesy of: RE/MAX Complete Realty
This REALTOR.ca listing content is owned and licensed by REALTOR® members of The Canadian Real Estate Association.